同城新茶,怎么联系学校附近的妹子呢,同城约100块钱一晚,全国空降同城免费不需要入会

服务热线:400-110-3938

诠释机房服务新主张

助力各行业电能方案完全升级

首页 常见问答

精密空调室外机高于内机好还是低于外机好

2017-09-12 16:06:51 



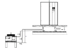
精密空调风冷系统压缩机安装在室内机内,以压缩机为基点,系统安装形式分为正落差和负落差两种形式(该安装形式只适用于风冷系列机组)

正落差——指的是室外机安装的垂直高度高于室内机。

负落差——指的是室外机安装的垂直高度低于室内机。

正负落差限制

正负落差取值


安装其他要求

正落差安装时,需在室外机的进气管和排液管上需加装反向弯,避免?;币禾宓幕亓鳌0沧胺聪蛲涫?,必须保证反向弯顶端弯管要高于室外机盘管最高一排铜管;

如正落差大于20m或连管长度超过30m时,需增加延长组件;

安装垂直高度超过10m时,建议气管在每6m的垂直高度位置上安装存油弯;

液管不得受阳光直射;

室内机系统气管和凝结水排水管应按一定角度(排气管≥0.3°的水平倾角)倾斜走管;

负落差安装时,冷凝器出口液管应按应按一定角度(气管≥0.3°的水平倾角)倾斜走管。

考虑到管径对系统压降、制冷剂流速和压缩机回油的影响,室内外机的连接铜管的建议管径管路建议尺寸。

正负落差示意图

正落差安装图

精密空调室外机高于内机好还是低于外机好-1


负落差安装图

精密空调室外机高于内机好还是低于外机好-2

苏州飞瑞电源有限公司12年专业代机房精密空调等产品和服务,12年专注和技术经验沉淀,提供售前咨询选型、售中解决方案设计安装、售后技术支持一站式服务。咨询热线:400-110-3938.



网友热评