精密空调室外机高于内机好还是低于外机好
精密空调风冷系统压缩机安装在室内机内,以压缩机为基点,系统安装形式分为正落差和负落差两种形式(该安装形式只适用于风冷系列机组)
正落差——指的是室外机安装的垂直高度高于室内机。
负落差——指的是室外机安装的垂直高度低于室内机。
正负落差限制
正负落差取值
形 式 |
垂直高度取值 |
备注 |
正落差 |
最大:+20m |
室内机低于室外机 |
负落差 |
最大:-5m |
室内机高于室外机 |
安装其他要求
正落差安装时,需在室外机的进气管和排液管上需加装反向弯,避免停机时液体的回流。安装反向弯时,必须保证反向弯顶端弯管要高于室外机盘管最高一排铜管;
如正落差大于20m或连管长度超过30m时,需增加延长组件;
安装垂直高度超过10m时,建议气管在每6m的垂直高度位置上安装存油弯;
液管不得受阳光直射;
室内机系统气管和凝结水排水管应按一定角度(排气管≥0.3°的水平倾角)倾斜走管;
负落差安装时,冷凝器出口液管应按应按一定角度(气管≥0.3°的水平倾角)倾斜走管。
考虑到管径对系统压降、制冷剂流速和压缩机回油的影响,室内外机的连接铜管的建议管径管路建议尺寸。
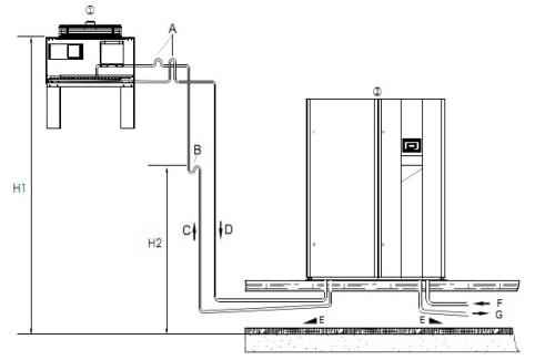
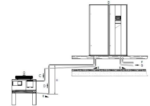
正负落差示意图
正落差安装图
负落差安装图
苏州飞瑞电源有限公司12年专业代机房精密空调等产品和服务,12年专注和技术经验沉淀,提供售前咨询选型、售中解决方案设计安装、售后技术支持一站式服务。咨询热线:400-110-3938.
飞瑞推荐
-
- 突破PDU机房机柜专用插座
产品介绍:
突破安推pdu 02TG120101是机房普遍使用的机柜电...
-
- APC三相UPS电源Galaxy300系列
产品介绍:
针对故障?;褪荻У挠行腿嗟缭幢;?,...
-
- 艾默生GXE系列塔式高性能UPS电源(1-10KVA)
产品型号:GXE01K00TS1101、02K00TS1101、03K00TS1101、0...
-
- 英威腾invt??榛疷PS电源机架式(10KVA-90KVA)
产品介绍:
英威腾模块化UPS电源10KVA-90KVA RM系列工作方...
-
- 汤浅12V铅酸蓄电池NP系列
产品介绍:
汤浅12V铅酸蓄电池NP系列有多种电池型号可供选择...
相关常见问答
- 飞瑞案例导航
- UPS电源储能方式
- UPS电池在冬天会供电时间变短吗?
- UPS电池莫名掉电是什么原因?
- 蓄电池的内阻值
- UPS电源产品介绍之宝星工业型UPS
- UPS电源整流器是什么?有什么作用?
- 什么是UPS缓冲模块?
- UPS电源室及机房的硬性要求有哪些?
- UPS电源产品科普之宝星三相变频EPS应急电源FEPS/B-BX系列